Acaba de empezar la construcción de una casa cuyo proyecto de ejecución desarrollamos a partir del anteproyecto realizado por la arquitecto Sarah Baril. Está situado en la población de Châteauneuf-Grasse, en la región de Provenza-Alpes-Costa Azul (Francia).
Por ahora compartimos los planos de la vivienda e iremos publicando los avances.
![]() |
| Trabajos de movimiento de tierras |
![]() |
| Emplazamiento |
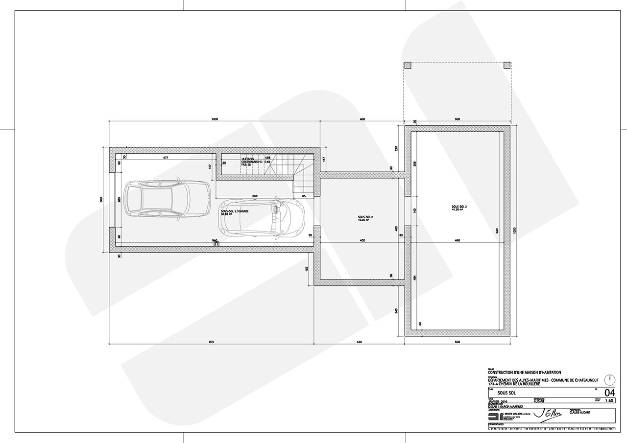
![]() |
| Sótano |
![]() |
| Planta baja |
![]() |
| Planta primera |
![]() |
| Sección longitudinal |
![]() |
| Sección transversal |
![]() |
| Alzados |







